Embassy Boulevard is an ultra-luxury villa development by Embassy Group, nestled in the upscale neighborhood of Yelahanka, North Bangalore. Spanning 51 acres of lush land, this gated community features resort-style amenities and meticulously landscaped gardens. Each villa boasts contemporary architecture, ample natural light, and premium finishes that reflect sophistication. The enclave’s prime location off Bellary Road offers seamless connectivity to Kempegowda International Airport and major business hubs. A world-class clubhouse, swimming pool, and wellness center foster a holistic lifestyle for residents. With robust security systems and professional property management in place, Embassy Boulevard ensures peace of mind for families. Proximity to top educational institutions, healthcare facilities, and shopping complexes enhances everyday convenience. Sustainable infrastructure initiatives further underline Embassy Group’s commitment to eco-friendly living. Whether you’re an investor or a homebuyer seeking exclusivity, Embassy Boulevard stands as a beacon of luxury in Bangalore’s thriving real estate landscape. Experience the pinnacle of refined living at Embassy Boulevard, where comfort, class, and convenience converge seamlessly.
Invest in Your Luxury Villa
Prime Location: Strategically situated in Yelahanka, ensuring quick access to Kempegowda International Airport and major city areas.
Ultra-Luxury Villas: Each residence is meticulously designed with high-quality finishes, contemporary architecture, and layouts that prioritize space, natural light, and comfort.
Resort-Style Amenities: Enjoy a world-class clubhouse, swimming pool, spa, and fitness center.
Security: 24/7 surveillance and professional property management for peace of mind.
Convenient Living: Proximity to top schools, hospitals, and shopping hubs.
Embassy Group Reliability: A trusted name in real estate, known for delivering premium developments.
| Size | Price | Price Sheet |
|---|---|---|
| 4 BHK Villa | 7.30 Cr - 11.80 Cr* | |
| 5 BHK Villa | 13 Cr - 17 Cr* |


Embassy Boulevard is an ultra-luxury villa enclave by Embassy Group, situated in the upscale neighborhood of Yelahanka, North Bengaluru. Spanning 51 acres of verdant land, the development features modern villas crafted for comfort and grandeur, complemented by top-tier amenities such as a spa, swimming pool, and tennis courts. Located just minutes from Kempegowda International Airport, Embassy Boulevard ensures seamless connectivity to prominent business hubs, schools, and healthcare facilities, making it an ideal choice for discerning homeowners and investors alike.
Embassy Boulevard offers exquisitely designed villas in varied sizes and layouts to suit diverse family needs. With a focus on open spaces, natural ventilation, and modern interiors, each villa reflects the refined standards of luxury living. Residents enjoy the serenity of a private haven while staying connected to the city’s key destinations.
Villa configurations at Embassy Boulevard cater to different lifestyle preferences. Whether seeking a compact yet elegant villa or a sprawling residence with landscaped lawns, homeowners can choose from multiple designs and sizes that seamlessly blend comfort with sophistication.
Embassy Boulevard focuses on enhancing well-being and leisure through a range of thoughtfully curated amenities. Each facility is designed to promote relaxation, social interaction, and a healthy lifestyle.
Embassy Group is a renowned real estate developer with a legacy of creating high-end residential and commercial spaces. Known for quality construction, innovative design, and timely delivery, the group has established a strong reputation across India. Embassy Boulevard reflects the builder’s commitment to crafting premium lifestyle experiences, ensuring residents benefit from modern infrastructure, robust security, and long-term value.
Embassy Boulevard exemplifies the Embassy Group’s vision of blending opulence with sustainability, offering a community-centric environment that prioritizes health, well-being, and smart investments.
Bangalore, the thriving capital of Karnataka, is renowned for its vibrant IT industry, pleasant climate, and cosmopolitan culture. North Bengaluru, in particular, has witnessed substantial growth due to the expansion of infrastructure, proximity to the International Airport, and the establishment of premier educational and healthcare institutions. This dynamic environment makes it an ideal region for luxury housing projects like Embassy Boulevard.
Embassy Boulevard seamlessly integrates with Bangalore’s evolving urban landscape. Located in Yelahanka, it offers residents the dual advantage of a quiet, greener locale and easy access to the city’s commercial centers and cultural hotspots.
While Embassy Boulevard is primarily known for its ultra-luxury villas, select plots within the development allow customization to build a home that perfectly suits individual preferences. This hybrid model of villas and plotted spaces underscores the project’s adaptability to varied lifestyle needs, all within a meticulously planned, secure environment.
With a strong emphasis on sustainability and community, Embassy Boulevard offers a holistic living experience, complete with modern amenities and expansive green spaces. The development stands as a testament to the Embassy Group’s dedication to creating landmark projects in Bangalore’s premium real estate segment.
Embassy Boulevard is a noteworthy investment destination, combining the prestige of an Embassy Group project with the growth potential of North Bengaluru. Its luxurious design, premium amenities, and proximity to key infrastructure positions the enclave as a highly coveted residential address.
Embassy Boulevard is a landmark in North Bengaluru’s luxury real estate landscape, offering a perfect mix of elegance, sustainability, and connectivity. Set amidst 51 acres of lush greenery, the development provides top-notch amenities, ensuring residents enjoy a premium lifestyle close to the city’s major hubs. With robust security measures, design flexibility, and high appreciation potential, it stands out as both a dream home and a sound investment for the future.
Embassy Boulevard enjoys a prime location in Yelahanka, North Bengaluru, an area witnessing rapid growth due to its excellent connectivity and thriving infrastructure. Situated near the Kempegowda International Airport and major business hubs, it offers residents both convenience and tranquility. Surrounded by established educational institutions, healthcare facilities, and retail centers, Embassy Boulevard strikes the perfect balance between urban living and scenic serenity. With easy access to D-Mart and KIADB Aerospace SEZ, as well as quick drives to recreational spots like Nandi Hills, this community promises a holistic lifestyle in one of Bengaluru’s most sought-after regions.
Embassy Boulevard ensures effortless connectivity to prominent destinations in and around Bengaluru:
Embassy Boulevard is an ultra-luxury villa development by Embassy Group, located in Yelahanka, North Bengaluru. It spans approximately 51 acres, offering a tranquil environment and premium amenities.
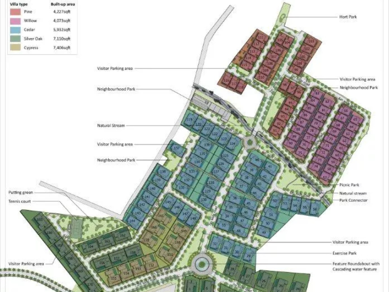
The project covers around 51 acres, featuring spacious villas and expansive landscaped areas designed for an exclusive, resort-like lifestyle.
Embassy Boulevard offers multiple villa configurations ranging from around 4,000 sq. ft. to over 7,000 sq. ft. These residences can be customized to suit varied lifestyle needs.
The development boasts a world-class clubhouse, swimming pool, spa, fitness center, tennis courts, and beautifully landscaped gardens. Additional facilities include jogging tracks, children’s play areas, and round-the-clock security.
Embassy Boulevard is situated in Yelahanka, North Bengaluru, offering easy connectivity to Kempegowda International Airport, Hebbal, and major commercial hubs along Bellary Road.
It is developed by Embassy Group, a leading real estate conglomerate renowned for premium residential and commercial projects across India.
The community is near Kempegowda International Airport and Yelahanka New Town, providing quick access to top educational institutions, healthcare facilities, and retail outlets. Major infrastructure projects like the Hebbal Flyover and the upcoming Peripheral Ring Road also enhance its connectivity and investment potential.
Concorde Abode 99.
Starts @ 2.20 Cr onwards Onwards*
Bommasandra, Chandapura, Bangalore
About Project
Cost Range
Brochure & Masterplan
Send details by
Sattva Springs
Starts @ 2.20 Cr onwards Onwards*
Kanakapura Road, Bangalore
About Project
Cost Range
Brochure & Masterplan
Send details by
Kumari Nautilus
Starts @ 2.20 Cr onwards Onwards*
Soukya Road, Whitefield, Bangalore
About Project
Cost Range
Brochure & Masterplan
Send details by
Raj Viviente by SNN Raj Corp
Starts @ 2.20 Cr onwards Onwards*
Bannerghatta Road, Bangalore
About Project
Cost Range
Brochure & Masterplan
Send details by
Pride villa
Starts @ 3.16 Cr onwards Onwards*
Bannerghatta -Jigani Road
About Project
Cost Range
Brochure & Masterplan
Send details by
Urbanrise Paradise on Earth
Starts @ 3.16 Cr onwards Onwards*
Kanakapura Road, Bangalore
About Project
Cost Range
Brochure & Masterplan
Send details by
The content is for information purposes only and does not constitute an offer to avail of any service. Prices mentioned are subject to change without notice and properties mentioned are subject to availability. Images for representation purposes only. This is the official website of authorized marketing partner. We may share data with RERA registered brokers/companies for further processing. We may also send updates to the mobile number/email id registered with us. All Rights Reserved.